Luxusní vila Starigrad (prodáno)
Starigrad , Zadarska oblast
Ložnice
3
Koupelny
4
Plocha
240 m²
Plocha pozemku
854 m²
Popis nemovitosti
Tato moderní vila, která se nachází v těsné blízkosti moře, je úchvatná svou polohou a elegantním designem. Vila je architektonicky navržena tak, aby poskytovala maximální komfort, luxus a soukromí. Rozlehlé skleněné stěny se táhnou od podlahy ke stropu a umožňují nerušený výhled na moře z téměř každé místnosti v domě. Vila splňuje energetickou náročnost A+. Pro pohodlí je v celém domě instalováno podlahové vytápění a všechny pokoje jsou klimatizovány. Na střeše byly dokončeny veškeré instalace pro instalaci solárních panelů. Dům v současné době prochází finálními dokončovacími pracemi a bude vybavena špičkovými materiály, a to jak v interiéru, tak v exteriéru zahrady a bazénu. Vedle terasy je postaven venkovní grill.
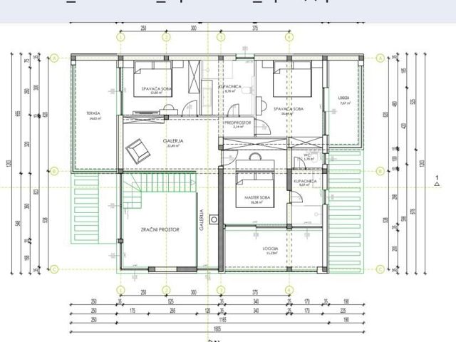
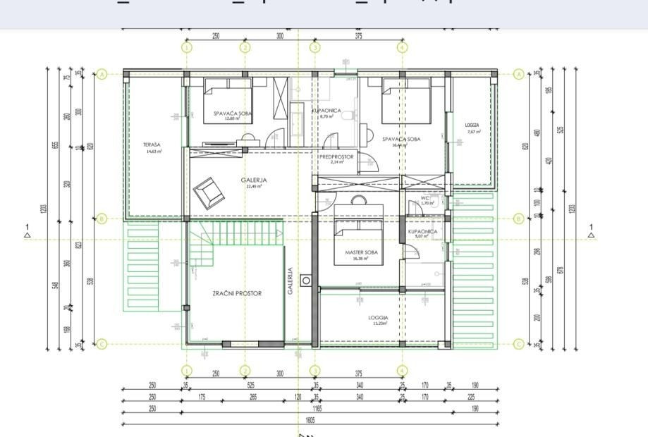
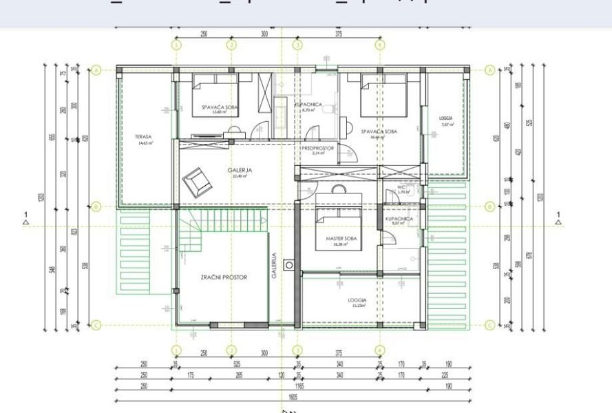
Vila se rozkládá na dvou podlažích s celkovou obytnou plochou 240 m2. Plocha pozemku je 854 m2.
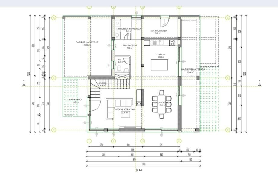
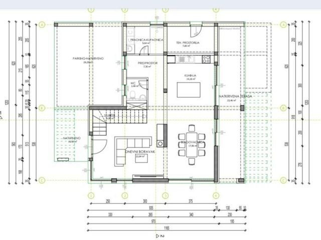
V přízemí je kuchyně s jídelnou, obývací pokoj, koupelna s prádelnou a WC. Dále je zde velký sklad a kotelna. Přízemní část má otevřený přístup na prostornou terasu s bazénem a prostorem na opalování.
V patře jsou tři prostorné ložnice, každá s vlastní moderní en-suite koupelnou a soukromou terasou. Koupelny jsou vybaveny materiály nejvyšší kvality.
Vybavení nemovitosti
- Aktivní telefonní linie
- Alarm
- Bazén
- Centrální klimatizace
- Klimatizace
- Podlahové topení
- Parlafon
- Bezpečnostní dveře
- Sprchový kout
- Bezpečnostní kamera
- Video parlafon
Poloha nemovitosti
- Pláž: 20 m
- Centrum: 1000 m
