ID: 617
prodej
dům
Luxusní dům
Luxusní dům Bibinje
Bibinje , Zadarska oblast
Cena: € 750 000
Ložnice
5
Koupelny
4
Plocha
290 m²
Plocha pozemku
468 m²
Popis nemovitosti
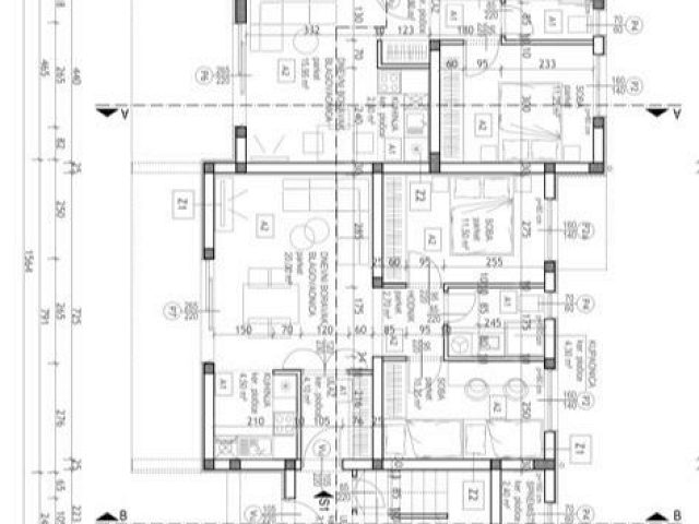
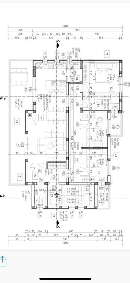
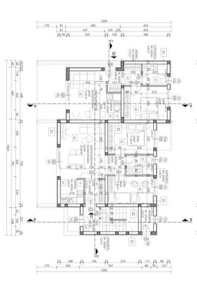
Na prodej je krásný, moderní, luxusní dům s bazénem, který se nachází v Bibinje nedaleko Zadaru. Dům má dvě podlaží, s celkovou obytnou plochou 290 m2. Dům je postaven na pozemku o velikosti 468 m2. pevná konstrukce, termoblok a pokrytý 8 cm izolací z polystyrenu, dále plochá střecha, která je kromě zateplení polystyrenem pokryta kamennými oblázky. V přízemí je jeden byt 1+1 45 m2 a jeden byt 2+1 58 m2. V prvním patře je byt 3+1 135 m2 a terasa 33 m2. Ve dvoře luxusního domu se nachází bazén 8x3 m a letní kuchyně. Tento luxusní dům se prodává kompletně zařízený a je vhodný k bydlení nebo jako investice.
Půdorysy
Poloha nemovitosti
Nahrávám mapu...
Vzdálenosti
- Pláž: 600 m
- Moře: 450 m
- Centrum: 1000 m
Zpět nahoru
