Byt se střešní terasou Ražanac
Ražanac , Zadarska oblast
Ložnice
2
Koupelny
1
Plocha
104 m²
Popis nemovitosti
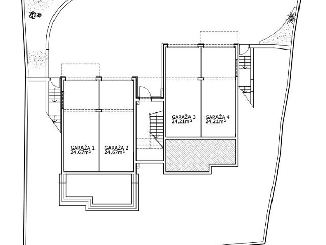
Nabízíme k prodeji luxusní apartmány v rezidenčním domě, který se nachází pouhých 50 metrů od moře, s krásným panoramatickým výhledem na moře Velebit a pohoří Velebit. Budova se skládá ze 4 bytů: - **Suterén:** Prostorné garáže - **Přízemí:** Dva dvoupokojové byty s přilehlými zahradami - **1. Patro:** Dva apartmány s vlastními střešními terasami a nádherným výhledem na moře a Velebit Apartmán S3 Penthouse - 103,53 m2, sestává ze dvou balkonů, koupelny, WC, dvou ložnic, obývacího pokoje s kuchyní a jídelnou. K bytu náleží velká, prostorná garáž v suterénu domu, plocha garáže je 24,21 m2 a velká střešní terasa 68 m2, která nabízí nádherný výhled na moře a hory. Popis vybavení: - 10 cm izolace z minerální vlny - parkety a prvotřídní keramika - Vytápění a chlazení přes multi split systém - klimatizace ve všech místnostech - el. rolety -podlahové vytápění v koupelnách -bezpečnostní dveře **Termín dokončení:** Léto 2025. Jedinečná příležitost investovat do nemovitosti v atraktivní lokalitě, která nabízí dokonalé spojení komfortu a přírodních krás.
Vybavení nemovitosti
- Klimatizace
- Bezpečnostní dveře
Poloha nemovitosti
- Pláž: 50 m
- Moře: 50 m
