Byt se zahrádkou Ražanac
Ražanac , Zadarska oblast
Ložnice
2
Koupelny
1
Plocha
95 m²
Popis nemovitosti
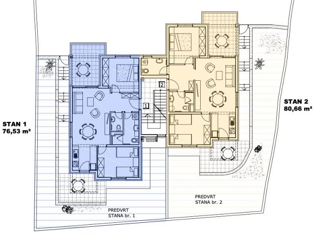
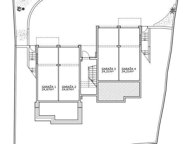
Nabízíme k prodeji luxusní apartmány v rezidenčním domě vzdáleném pouhých 50 metrů od moře, s krásným panoramatickým výhledem na moře a pohoří Velebit. Budova se skládá ze 4 bytů: - **Suterén:** Prostorné garáže - **Přízemí:** Dva dvoupokojové apartmány s přilehlými zahradami -**1. patro:** Dva apartmány s připojenými střešními terasami a nádherným výhledem na moře a Velebit Byt S2 o výměře 95 m2, sestává z koupelny, WC, dvou ložnic, obývacího pokoje s kuchyní a jídelnou, se vstupem na krytou i nekrytou terasu, která je v komunikaci s velkou prostornou zahradou 95 m2 . K bytu náleží velká prostorná garáž v suterénu domu, plocha garáže je 24,21 m2. Popis vybavení: - izolace z kamenné vlny 10 cm - parkety a prvotřídní keramika -Vytápění a chlazení prostřednictvím multi split systému - klimatizace ve všech pokojích - email rolety - podlahové vytápění v koupelnách - bezpečnostní dveře **Termín dokončení:** Léto 2025.
Vybavení nemovitosti
- Klimatizace
- Bezpečnostní dveře
Poloha nemovitosti
- Pláž: 50 m
- Moře: 50 m
