Byt se zahrádkou Ražanac
Ražanac , Zadarska oblast
Ložnice
2
Koupelny
1
Plocha
91 m²
Popis nemovitosti
Nabízíme k prodeji luxusní apartmány v rezidenčním domě nacházejícím se pouhých 50 metrů od moře, s krásným panoramatickým výhledem na pohoří Velbit.
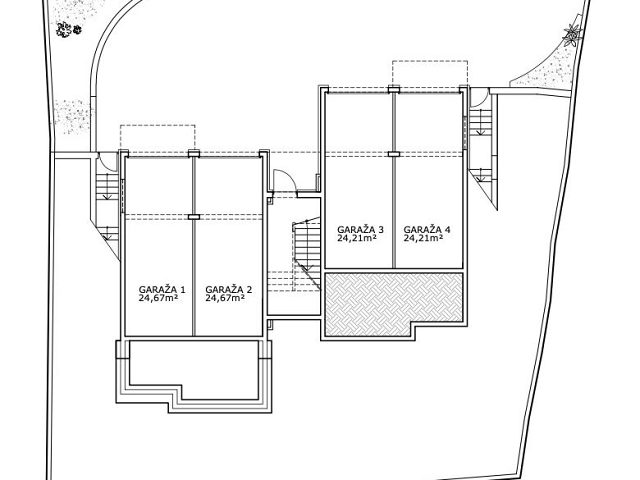
Dva dvoupokojové byty s přilehlými zahradami - **1. Patro:** Dva apartmány s vlastními střešními terasami a nádherným výhledem na moře a Velebit Apartmán S1, 91 m2, sestává z koupelny, WC, dvou ložnic, obývacího pokoje s kuchyní a jídelnou, se vstupem na krytou i nekrytou terasu, která je v komunikaci s velkou prostornou zahradou 85 m2. K bytu náleží velká, prostorná garáž v suterénu domu, plocha garáže je 24,67 m2. Popis vybavení: - 10 cm izolace z minerální vlny - parkety a prvotřídní keramika - Vytápění a chlazení přes multi split systém - klimatizace ve všech místnostech - el. rolety -podlahové vytápění v koupelnách -bezpečnostní dveře **Termín dokončení:** Léto 2025.
Vybavení nemovitosti
- Klimatizace
- Bezpečnostní dveře
Poloha nemovitosti
- Pláž: 50 m
- Moře: 50 m
