ID: 1415
prodej
byt
3+KK, K nastěhování
Luxusní novostavba Zadar - Diklo, jen 80 m od moře (S2)
Zadar , městská část Diklo , Zadarska oblast
Cena: € 569 000
Ložnice
2
Koupelny
1
Plocha
98 m²
Popis nemovitosti
Na prestižní adrese v elitní čtvrti Diklo v Zadaru se nachází moderní rezidenční budova s pouhými šesti exkluzivními byty. Jen 80 m od moře, tato nemovitost nabízí dokonalý mix luxusu, soukromí a pohodlí v blízkosti všech důležitých služeb.
Budova nabízí:
- Parkovací místo v podzemní garáži
- Vlastní sklepní prostor
- Přístup výtahem přímo z garáže
- Dva byty v přízemí mají soukromé zahrady, zatímco dva v posledním patře disponují exkluzivními střešními terasami s panoramatickým výhledem na moře.
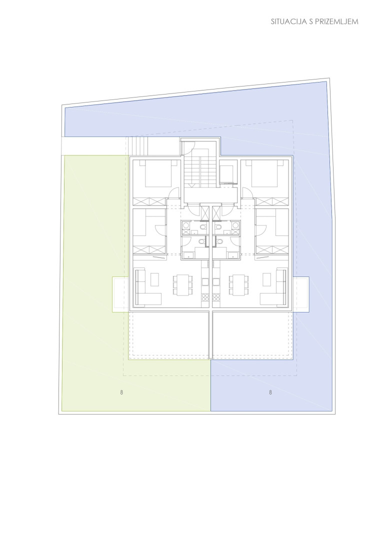
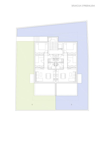
Byt S2 - přízemí
- 2 ložnice
- Prostorný obývací pokoj s kuchyní a jídelnou v otevřeném konceptu
- Koupelna + samostatné WC
- Terasa 21 m²
- Soukromá zahrada 160 m²
- Byt se prodává plně zařízený, s pečlivě vybraným nábytkem a detaily, které zajišťují maximální komfort a estetiku.
Vybavení:
- Podlahové topení
- Klimatizace v každé místnosti
- Podlahy z kvalitní keramické dlažby
- Velké posuvné stěny Schüco s přímým vstupem na terasu a zahradu
- Elektrické rolety s integrovanými sítěmi proti hmyzu
- Nepřímé LED osvětlení v obytných prostorech a na terasách
- Videotelefon s monitorem a bezpečnostní kamery
- Výtah z garáže
- Vlastní sklepní místnost
- Veškerá technická zařízení jsou umístěna v podzemí, žádné venkovní jednotky klimatizace na fasádě, žádné instalace v koupelnách.
Půdorysy
Poloha nemovitosti
Nahrávám mapu...
Vzdálenosti
- Pláž: 80 m
- Moře: 80 m
Zpět nahoru
