ID: 1414
prodej
byt
3+kk, k nastěhování
Luxusní novostavba Zadar - Diklo, jen 80 m od moře (S1)
Zadar , městská část Diklo , Zadarska oblast
Cena: € 569 000
Ložnice
2
Koupelny
1
Plocha
95 m²
Popis nemovitosti
Na prestižní adrese v elitní zadarské čtvrti Diklo se nachází moderní rezidenční budova s pouhými šesti exkluzivními byty. Jen 80 m od moře, spojuje tato novostavba luxus, soukromí a komfort s blízkostí všech potřebných služeb.
Budova nabízí:
- Parkovací místo v podzemní garáži
- Vlastní sklepní kóji
- Přístup do budovy výtahem přímo z garáže
- Dva byty v přízemí mají soukromé zahrady, zatímco dva v posledním patře disponují exkluzivními střešními terasami s výhledem na moře.
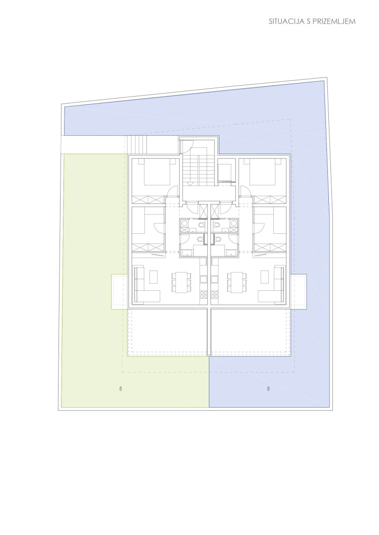
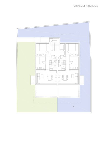
Byt S1 - přízemí
- 2 ložnice
- Prostorný obývací pokoj s kuchyní a jídelnou v otevřeném konceptu
- Koupelna + samostatné WC
- Terasa 21 m²
- Soukromá zahrada 124 m²
- Byt je plně zařízený luxusním nábytkem a vybavením, které spojuje pohodlí a eleganci.
Vybavení:
- Podlahové topení
- Klimatizace v každé místnosti
- Podlahy: špičková keramická dlažba
- Velké posuvné stěny Schüco s přímým vstupem na terasu a zahradu
- Elektrické rolety s integrovanými sítěmi proti hmyzu
- Nepřímé LED osvětlení v obytných prostorech i na terase
- Videotelefon s monitorem + bezpečnostní kamery
- Výtah z garáže
- Vlastní sklepní místnost
- Všechny technické instalace jsou umístěny v suterénu – žádné venkovní jednotky klimatizace na fasádě, žádné instalace v koupelnách.
Půdorysy
Poloha nemovitosti
Nahrávám mapu...
Vzdálenosti
- Pláž: 80 m
- Moře: 80 m
Zpět nahoru
