Byt v novostavbě Zadar - Diklo
Diklo , Zadarska oblast
Ložnice
2
Plocha
100 m²
Popis nemovitosti
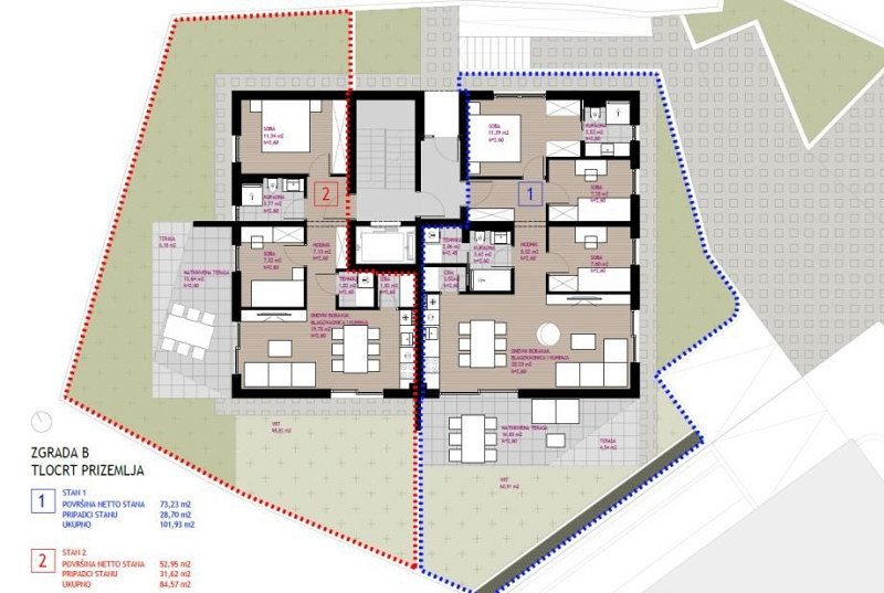
Byt B2 v přízemí moderní budovy se 6 bytovými jednotkami se zahradou a terasami
Byt B2, umístěný v přízemí domu s celkem šesti byty, nabízí obytnou plochu 52,3 m² a další prostory: krytou terasu, zahradní terasu, soukromou zahradu, komoru v podzemní garáži a venkovní a garážové stání. Celková čistá obytná plocha bytu je 101,0 m², přičemž v katastru nemovitostí je evidována jako 87,2 m² užitné plochy s ohledem na výpočet užitné hodnoty zahrady (obsahující 24 druhů středomořských rostlin, zavlažovací systém, přípojky elektřiny a vody, upravené trávníky a oplocený dvůr) při koeficientu 25.
Tepelné čerpadlo DAIKIN 3 v 1 pro vytápění, chlazení a ohřev vody.
K nastěhování na konci roku 2024.
Technické specifikace: Energetická účinnost: A+Fasáda: ETICS (14 cm) v 1. a 2. patře, odvětrávaná fasáda v přízemí Podlahové vytápění, chlazení a příprava teplé vody pomocí 3-in-1 elektricky ovládaného tepelného čerpadla DAIKIN s tepelným čerpadlem ROLT. Žaluzie na terasách, Pevné hliníkové slunečníky na terasách, Kvalitní sanita (LAUFEN, HANSGROHE, TECE)
Koupelna a WC: FLORIM Match-up (120×60 cm)
Úložné prostory a technické místnosti: FLORIM Match-up (60×60 cm Terasa 60 cm 60 cm zateplená podlaha 60 cm Přízemí). (broušené a matné lakované interiérové dveře v bílé barvě). matná barva s minimalistickým designem kliky a protipožární vstupní dveře s odhlučněním. Rychlý a tichý výtah KONE (kapacita: 8 osob) Komfortní parkovací stání s napájením pro elektromobily.
Poloha: 250 m od mořeS výhledem na moře, do zahrad a dvorů.
24 parkovacích míst (12 v garáži, 12 venku)
Poloha nemovitosti
- Pláž: 250 m
- Moře: 250 m
