Byt v novostavbě Vir
Vir , Zadarska oblast
Ložnice
2
Koupelny
2
Plocha
98 m²
Popis nemovitosti
Představujeme vám exkluzivní nabídku nově postavených apartmánů na ostrově Vir, místě, kde se krása snoubí s funkčností, poskytující dokonalé prostředí pro život nebo dovolenou.
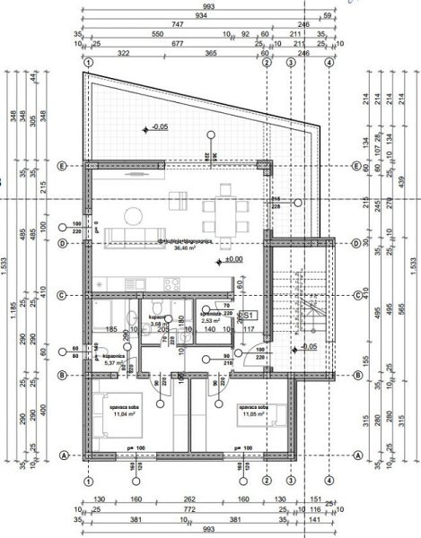
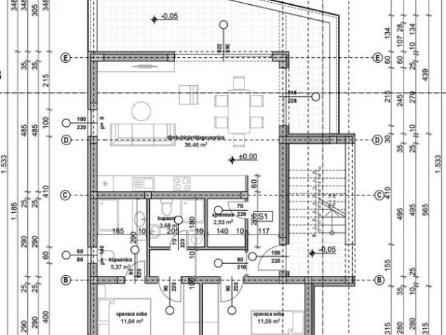
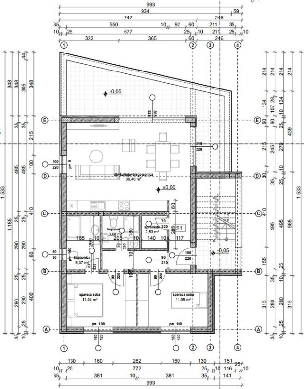
Tato novostavba se skládá ze tří bytů, každý se nachází na samostatném patře – přízemí, první patro a druhé patro – zajišťující soukromí a pohodlí pro každého obyvatele. Všechny byty mají shodný půdorys.
Každý byt se rozkládá na ploše 98,38 m², s čistou obytnou plochou 84,16 m². Prostorný obývací pokoj s integrovanou kuchyní a jídelním koutem zaujímá působivých 36,46 m² a vede na velkou krytou terasu 28,25 m², oddělenou velkou prosklenou stěnou, díky níž je prostor vyjímečně prosvětlený a otevřený. Každý apartmán obsahuje dvě ložnice, o velikosti 11 m², přičemž jedna ložnice má vlastní koupelnu o velikosti 5,37 m². Kromě toho má byt další koupelnu o velikosti 3,68 m² a komoru o velikosti 2,53 m², které poskytují funkční a pohodlný obytný prostor. Ke všem bytům náleží také dvě parkovací stání, což dále zvyšuje praktičnost této nabídky.
Ostrov Vir, který se nachází v zadarském souostroví, je s pevninou spojen mostem, díky čemuž je snadno dostupný a je ideální pro celoroční bydlení nebo jako cíl dovolené. Na Viru najdete veškeré občanské vybavení, včetně obchodů, restaurací, autobusového nádraží, školky, základní školy, polikliniky, lékárny a četných písečných a oblázkových pláží.
Poloha nemovitosti
- Pláž: 250 m
- Moře: 250 m
