Nový luxusní projekt na Viru
Vir , Zadarska oblast
Ložnice
3
Koupelny
2
Plocha
191 m²
Popis nemovitosti
Nový luxusní projekt na Viru – První a druhá řada u moře!
Představujeme vám nový exkluzivní projekt na ostrově Vir – dvě luxusní budovy s celkem 8 apartmány, které se nacházejí v 1. a 2. řadě u moře, hned vedle jedné z nejkrásnějších pláží na ostrově! Každá budova obsahuje 4 apartmány – 2 v přízemí, 1 v 1. patře a 1 ve 2. patře, a všechny apartmány mají panoramatický výhled na moře.
Nabídka zahrnuje apartmány se dvěma, třemi, čtyřmi a pěti ložnicemi, skvěle navržené pro maximální pohodlí, relaxaci a požitek u moře. Apartmány v přízemí mají vlastní zahradu, zatímco apartmány v 1. a 2. patře nabízejí velké kryté terasy a apartmány ve 2. patře mají také soukromé střešní terasy s možností vířivky.
Technické provedení a vybavení:
Vysoce kvalitní železobetonová konstrukce s vynikající tepelnou a zvukovou izolací
Hliníkové truhlářské výrobky (Feal Thermo) s trojskly, dálkově ovládanými roletami a moskytiérami
Moderní koupelny s vybavením Grohe/Ideal Standard a elektrickým podlahovým vytápěním
Klimatizace Samsung Windfree s Wi-Fi ovládáním
Elektrické kotle a větrání Ariston Velis s rekuperací vzduchu
Dotykové skleněné vypínače a zásuvky LIVOLO
Přípojky pro elektromobily na byt
Střešní terasy s vestavěnými kuchyněmi, sprchou, toaletou a skleněným zábradlím
Exteriér:
Upravené zahrady s okrasnými rostlinami, zábradlím, osvětlením a soukromou příjezdovou cestou
Kvalitní keramické obklady na terasách, umělá tráva, dlažba Semmelrock
Každý byt má vyhrazené parkovací místo
Další výhoda: Investor nabízí při koupi možnost zařídit si interiér dle vlastního přání!
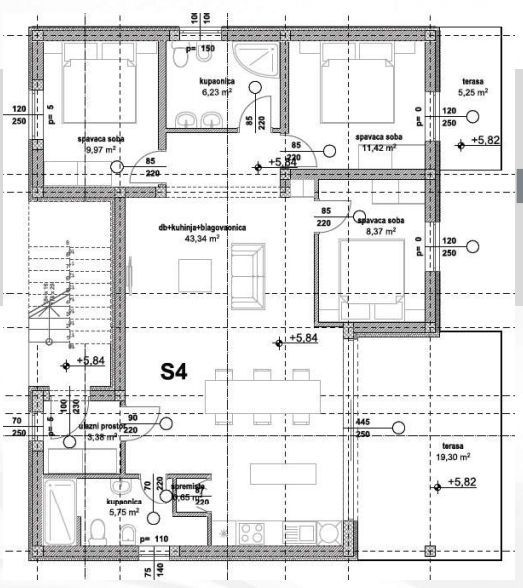
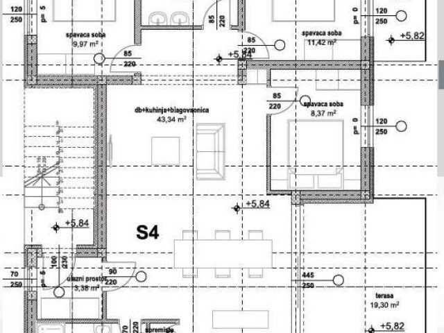
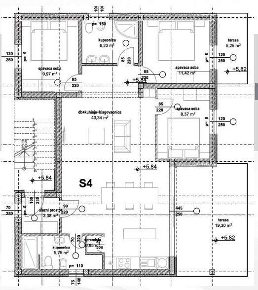
Apartmán S4 v budově 2:
Tento byt se nachází v 1. patře a skládá se ze 3 ložnic, 2 koupelen, kryté terasy, obývacího pokoje, kuchyně s jídelnou, technické místnosti, střešní terasy a má 2 parkovací místa.
Obytná plocha: 89,1 m²
Krytá terasa: 24,5 m²
Střešní terasa: 47,4 m2
Úložná plocha: 3,1 m²
Dvě parkovací místa: celkem 25 m²
Hrubá plocha: 191,1 m²
Poloha nemovitosti
- Pláž: 10 m
- Moře: 10 m

 
                                
                                 
                                
                                 
                                
                                 
                                
                                 
                                
                                 
                                
                                