Byt v novostavbě Sukošan
Sukošan , Zadarska oblast
Ložnice
3
Koupelny
2
Plocha
132 m²
Popis nemovitosti
Vítejte v novém projektu v Sukošanu, oáze luxusu a pohodlí na krásném pobřeží Jaderského moře. Tyto apartmány se nacházejí v první řadě u moře a představují směs elegantního designu, nádherných výhledů a špičkového vybavení. Projekt se skládá ze tří luxusních rezidenčních budov s byty o velikosti 50-150 m2. Funkční byty s pečlivě navrženou dispozicí. Kvalitní zpracování a výběr materiálů poskytuje koncept bydlení v bezstarostném a pohodlném prostředí, který se v dnešním světě stává nezbytností. Tento komplex se nachází v idylickém Sukošanu a nabízí ničím nerušený výhled na křišťálově čisté moře a krásné západy slunce, což vytváří dokonalou atmosféru pro bydlení i dovolenou.
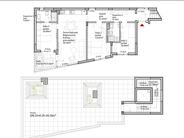
Byt s označením S 03, který se nachází ve druhém patře budovy 3, nabízí všechny předpoklady pro luxusní a pohodlné bydlení. Byt se skládá z: Předsíň 11,62 m2, Koupelna 1 4,15 m2, Koupelna 2 4,56 m2, Obývací pokoj, kuchyň. a jídelna 30,16 m2, Ložnice 1 10,00 m2, Ložnice 2 13,81 m2, Ložnice 3 10,84 m2 a Lodžie 7,42 m2. K bytu náleží střešní terasa 106 m2 a venkovní parkovací stání 12,50 m2. Orientace bytu je jih, jihovýchod. Plánované dokončení všech prací je začátek roku 2026.
Sukošan je malebné městečko ležící na pobřeží Jaderského moře, nedaleko města Zadar v Chorvatsku. Je známé pro svou ohromující přírodní krásu s dlouhými písečnými plážemi a křišťálově čistým mořem. Kromě toho, že je Sukošan oblíbenou turistickou destinací, je známý také svým přístavem, který je jedním z největších na Jadranu a přitahuje četné jachtaře. Kromě bohatých možností pro vodní aktivity, jako je plachtění, potápění a rybaření, nabízí Sukošan také bohatou gastronomickou nabídku s restauracemi, které podávají čerstvé mořské plody a tradiční dalmatské speciality. Zachovalá příroda, klidné prostředí a pohostinní obyvatelé dělají ze Sukošanu oblíbenou destinaci pro odpočinkovou dovolenou u moře. Pokud sníte o bydlení u moře v luxusním prostředí, nový projekt Sukošan je pro vás tím pravým místem. S nádherným výhledem je to místo, kde se plní sny o středomořském životním stylu.
Vybavení nemovitosti
- Alarm
- Elektrické žaluzie
- Klimatizace
- Výtah
- Podlahové topení
- Parlafon
- Video parlafon
Poloha nemovitosti
- Pláž: 15 m
- Moře: 15 m
- Centrum: 1000 m
