Byt v novostavbě Sukošan
Sukošan , Zadarska oblast
Ložnice
2
Koupelny
2
Plocha
104 m²
Popis nemovitosti
Vítejte v novém projektu v Sukošanu, oáze luxusu a pohodlí na krásném pobřeží Jaderského moře. Tyto apartmány se nacházejí v první řadě u moře a představují směs elegantního designu, nádherných výhledů a špičkového vybavení. Projekt se skládá ze tří luxusních rezidenčních budov s byty o velikosti 50-150 m2. Funkční byty s pečlivě navrženou dispozicí. Kvalitní zpracování a výběr materiálů poskytuje koncept bydlení v bezstarostném a pohodlném prostředí, který se v dnešním světě stává nezbytností. Tento komplex se nachází v idylickém Sukošanu a nabízí ničím nerušený výhled na křišťálově čisté moře a krásné západy slunce, což vytváří dokonalou atmosféru pro bydlení i dovolenou.
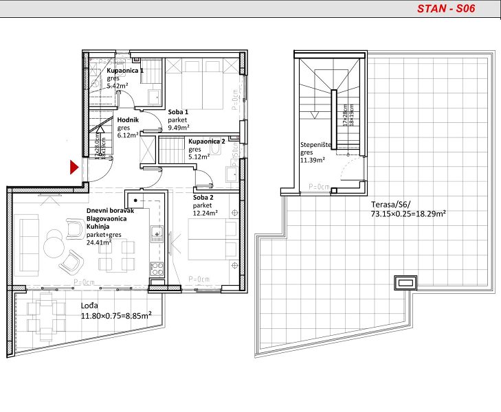
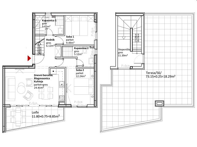
Byt s označením S 06, který se nachází ve druhém patře budovy 2, nabízí všechny předpoklady pro luxusní a pohodlný pobyt, sestávající z: Předsíň 6,12 m2, Koupelna 1 5,42 m2, Koupelna 2 5,12 m2, Obývací pokoj, kuchyň. a jídelna 24,41 m2, Ložnice 1 9,49 m2, Ložnice 2 12,24 m2, Lodžie 11,80 m2. K bytu dále náleží střešní terasa 73,15 m2 a venkovní parkovací stání číslo 6 o velikosti 13,53 m2. Orientace bytu je na jih, jihovýchod. Přepočtená čistá plocha bytu je 104,04 m2. Plánované dokončení všech prací je začátek roku 2026.
Sukošan je malebné městečko ležící na pobřeží Jaderského moře, nedaleko města Zadar v Chorvatsku. Je známé pro svou ohromující přírodní krásu s dlouhými písečnými plážemi a křišťálově čistým mořem. Kromě toho, že je Sukošan oblíbenou turistickou destinací, je známý také svým přístavem, který je jedním z největších na Jadranu a přitahuje četné jachtaře. Kromě bohatých možností pro vodní aktivity, jako je plachtění, potápění a rybaření, nabízí Sukošan také bohatou gastronomickou nabídku s restauracemi, které podávají čerstvé mořské plody a tradiční dalmatské speciality. Zachovalá příroda, klidné prostředí a pohostinní obyvatelé dělají ze Sukošanu oblíbenou destinaci pro odpočinkovou dovolenou u moře. Pokud sníte o bydlení u moře v luxusním prostředí, nový projekt Sukošan je pro vás tím pravým místem. S nádherným výhledem je to místo, kde se plní sny o středomořském životním stylu.
Vybavení nemovitosti
- Alarm
- Elektrické žaluzie
- Klimatizace
- Výtah
- Podlahové topení
- Parlafon
- Video parlafon
Poloha nemovitosti
- Pláž: 15 m
- Moře: 15 m
- Centrum: 1000 m
