Byt v novostavbě Privlaka
Privlaka , Zadarska oblast
Ložnice
3
Koupelny
3
Plocha
156 m²
Popis nemovitosti
LUXUSNÍ PENTHOUSE SE STŘEŠNÍ TERASOU A VÝHLEDEM NA MOŘE A VELEBIT
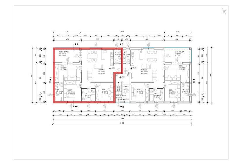
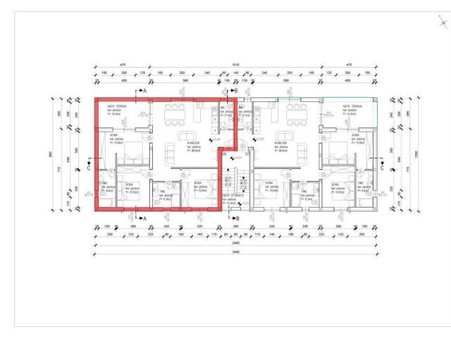
Představujeme Vám exkluzivní penthouse nacházející se ve druhém patře novostavby, který nabízí nepřekonatelný luxus a neuvěřitelný výhled na Jaderské moře a horu Velebit. Tato prostorná nemovitost s čistou plochou 156,1 m² nabízí dokonalé spojení moderního designu, funkčnosti a přírodní krásy.
Prostorný obývací pokoj propojený s kuchyní a jídelnou v konceptu otevřeného prostoru
Tři ložnice, ideální pro rodinu a hosty
Tři moderní koupelny, navržené s vysoce kvalitní sanitární keramikou, která poskytuje prostor pro relaxaci v každodenním životě
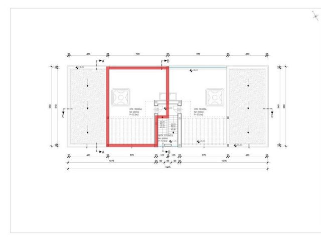
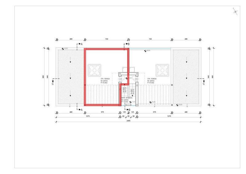
Exkluzivní střešní terasa o velikosti 60 m² s krásným panoramatickým výhledem na moře a pohoří Velebit.
1 parkovací místo v ceně s možností dokoupení dalšího
Vysoce kvalitní tepelná izolace (10 cm PVC truhlářství s trojitým sklem a zabudovanými moskytiérami). Celý objekt je vybaven klimatizací pro optimální teplotu po celý rok.
Tento penthouse se nachází pouhých 400 metrů od písečných pláží Sabunika a Nin a nabízí dokonalou rovnováhu mezi luxusem a přírodou.
Poloha nemovitosti
- Moře: 400 m
Vyžádejte si prohlídku
Rychlý popis
Bezplatná vstupní konzultace
Nejde o prodejní schůzku. Jde o hovor ke sladění očekávání — lokalita, typ nemovitosti, rozpočet, průběh koupě. Bez závazků, bez tlaku. Pomůžeme vám zorientovat se a odpovíme na všechny vaše otázky.
Najděme vaši nemovitost
u moře společně
Zavolejte nebo napište – odpovíme do 24 hodin. K dispozici 7 dní v týdnu.
