Byt v novostavbě Privlaka
Privlaka , Zadarska oblast
Ložnice
3
Koupelny
2
Plocha
139 m²
Popis nemovitosti
LUXUSNÍ BYT - PRIVLAKA, DRUHÁ ŘADA OD MOŘE
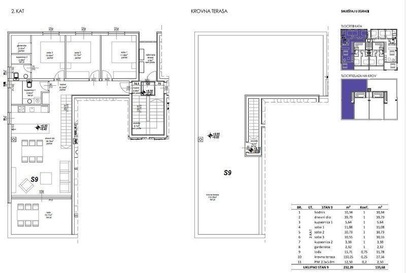
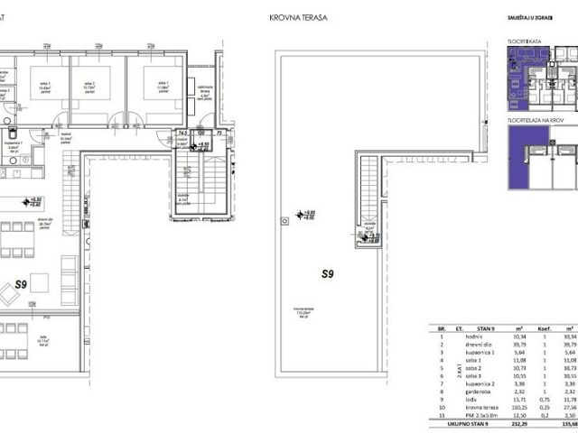
Prostorný byt 3+1 (S10) na dvou podlažích je na prodej v Privlace nedaleko Zadaru. Celková plocha bytu s příslušenstvím je 139,44 m². Byt se nachází v domě s 10 bytovými jednotkami, který se nachází ve druhé řadě od moře. Vstup do objektu je soukromý, oplocený a zabezpečený přístupovým systémem s kódem nebo kartou, což majitelům zajišťuje naprosté soukromí a bezpečí.
BYT SE SKLÁDÁ Z:
Vstupní hala
Prostorný obývací pokoj s kuchyní a jídelnou (40,92 m2)
Tři ložnice
Dvě moderní koupelny
Šatní skříň Lodžie (16,32 m2)
Střešní terasa (118,56 m2)
Vlastní parkovací stání na pozemku
Podlahové vytápění v obývacím pokoji a kuchyni pro maximální komfort
Klimatizace ve všech pokojích
Kvalitní parkety a keramika
PVC truhlářství nejvyšší kvality
Kupující neplatí daň z nabytí nemovitosti!
Plánované dokončení stavby je únor 2026.
Poloha nemovitosti
- Pláž: 90 m
- Moře: 90 m
