Byt v novostavbě Privlaka
Privlaka , Zadarska oblast
Ložnice
3
Koupelny
2
Plocha
136 m²
Popis nemovitosti
LUXUSNÍ BYT PRIVLAKA, DRUHÁ ŘADA OD MOŘE
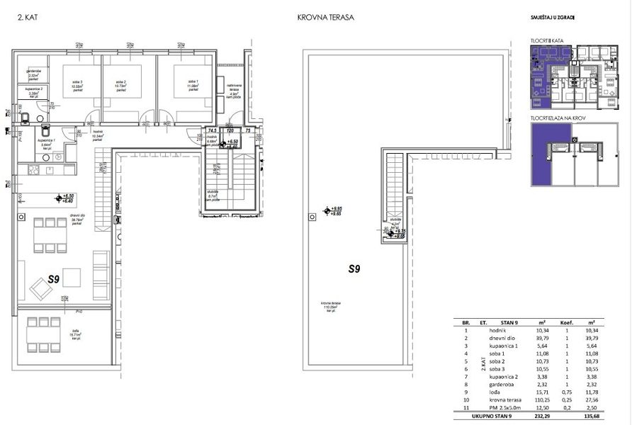
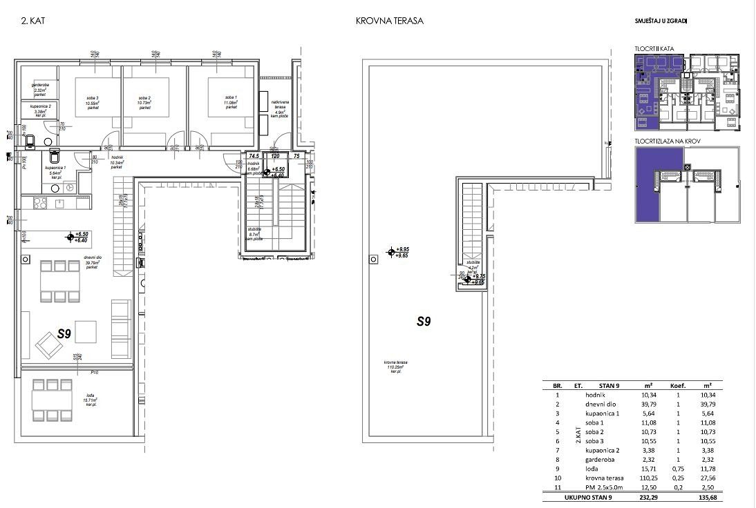
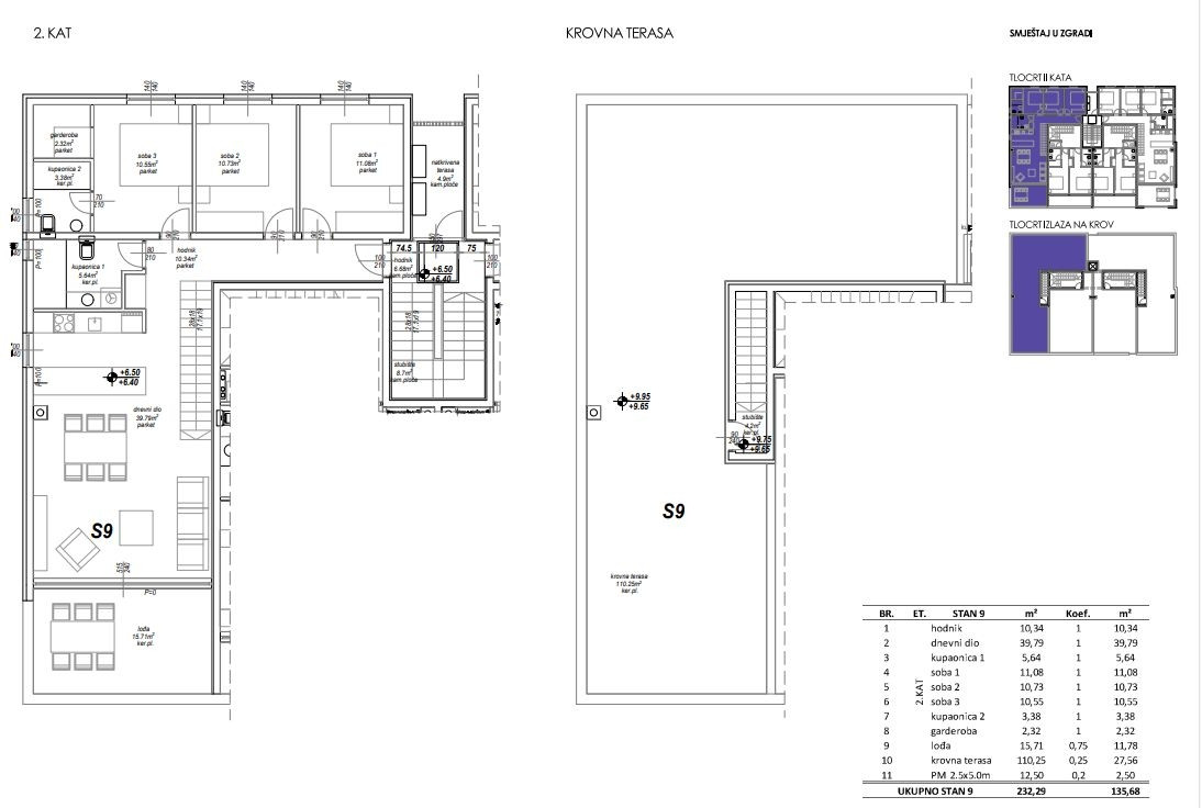
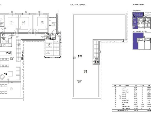
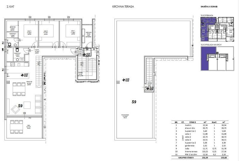
Prostorný byt 3+1 (S9) na dvou podlažích je na prodej v Privlace nedaleko Zadaru. Celková plocha bytu s příslušenstvím je 135,68 m². Byt se nachází v domě s 10 bytovými jednotkami, který se nachází ve druhé řadě od moře. Vstup do objektu je soukromý, oplocený a zabezpečený přístupovým systémem s kódem nebo kartou, což majitelům zajišťuje naprosté soukromí a bezpečí.
VLASTNOSTI BYTU:
Vstupní hala
Prostorný obývací pokoj s kuchyní a jídelnou (39,79 m2)
Tři ložnice
Dvě moderní koupelny
Šatní skříň Lodžie (15,71 m2)
Střešní terasa (110,25 m2)
Vlastní parkovací stání na pozemku
Podlahové vytápění v obývacím pokoji a kuchyni pro maximální komfort
Klimatizace ve všech pokojích
Kvalitní parkety a keramika
PVC truhlářství nejvyšší kvality
Kupující neplatí daň z převodu nemovitosti!
Plánované dokončení stavby je únor 2026.
Poloha nemovitosti
- Pláž: 90 m
- Moře: 90 m
