Byt v novostavbě Privlaka
Privlaka , Zadarska oblast
Ložnice
2
Koupelny
2
Plocha
130 m²
Popis nemovitosti
LUXUSNÍ TŘÍPATROVÝ BYT - PRIVLAKA, DRUHÁ ŘADA OD MOŘE
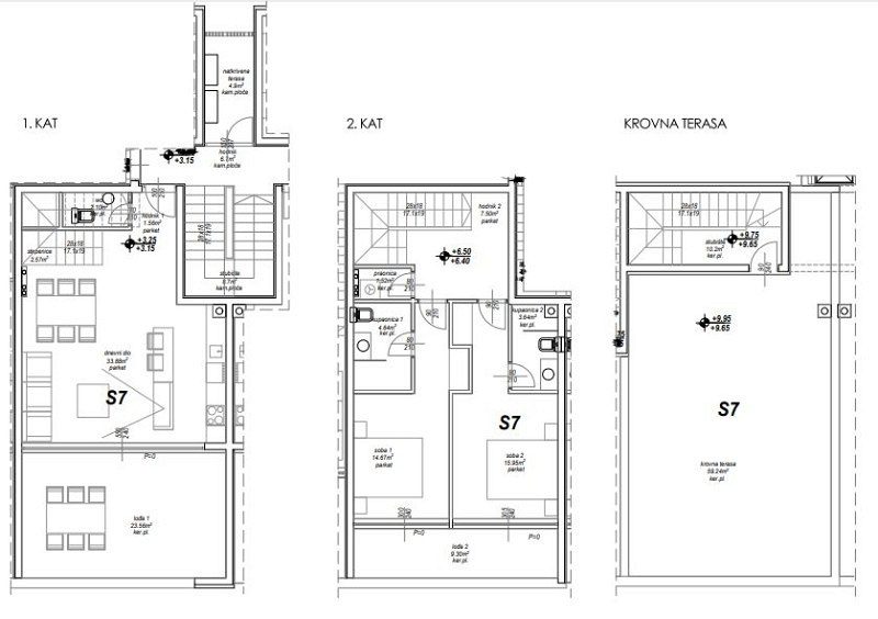
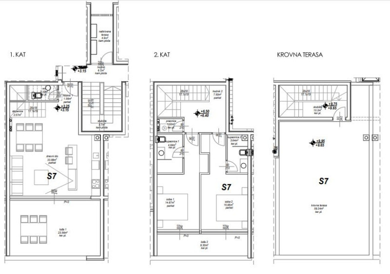
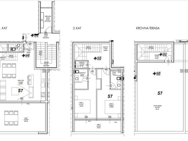
Prostorný byt 2+1 (S7) na třech podlažích je na prodej v Privlace nedaleko Zadaru. Celková plocha bytu s příslušenstvím je 129,99 m². Byt se nachází v domě s 10 bytovými jednotkami, který se umístěna ve druhé řadě od moře. Vstup do objektu je soukromý, oplocený a zabezpečený přístupovým systémem s kódem nebo kartou, což majitelům zajišťuje naprosté soukromí a bezpečí.
VLASTNOSTI BYTU
Vstupní hala
Prostorný obývací pokoj s kuchyní a jídelnou (33,88 m2)
Dvě ložnice
Dvě moderní koupelny
Toaleta
Šatní skříň
Prádelna Lodžie 1 (23,56 m2)
Lodžie 2 (9,30 m2)
Střešní terasa (59 m2)
Vlastní parkovací místo na pozemku
Podlahové vytápění v obývacím pokoji a kuchyni pro maximální komfort
Klimatizace ve všech pokojích
Kvalitní parkety a keramika
PVC truhlářství nejvyšší kvality
Kupující neplatí daň z nabytí nemovitosti!
Plánované dokončení stavby je únor 2026.
Poloha nemovitosti
- Pláž: 90 m
- Moře: 90 m
