Byt v novostavbě Privlaka
Privlaka , Zadarska oblast
Ložnice
3
Koupelny
2
Plocha
106 m²
Popis nemovitosti
LUXUSNÍ BYT - PRIVLAKA, DRUHÁ ŘADA OD MOŘE
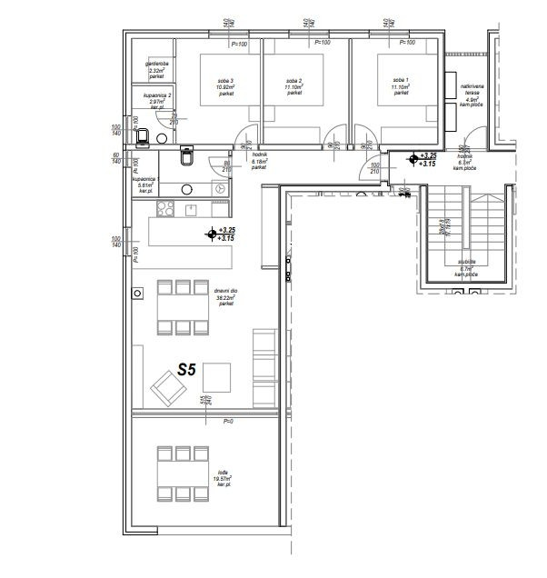
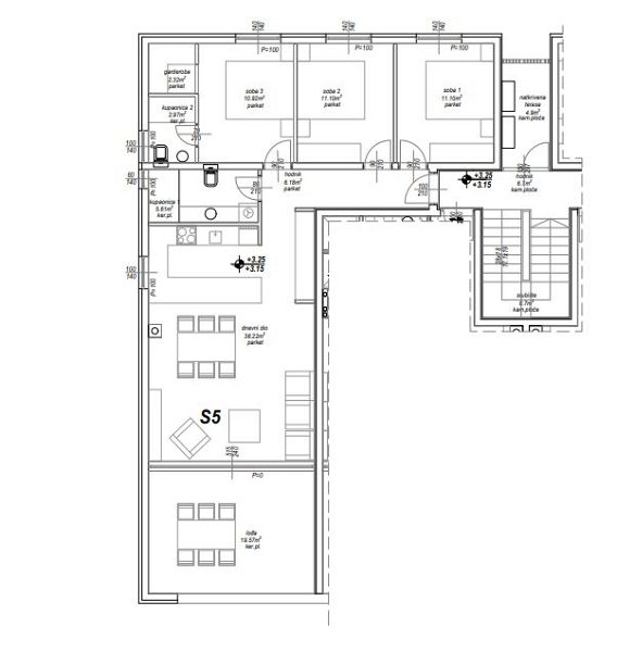
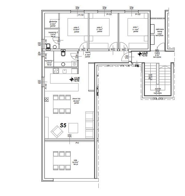
Prostorný byt 3+1 (S5) je na prodej v prvním patře novostavby v Privlace, v bezprostřední blízkosti Zadaru. Celková plocha bytu s příslušenstvím je 105,60 m². Byt se nachází v domě s 10 bytovými jednotkami, který je umístěn ve druhé řadě od moře. Vstup do objektu je soukromý, oplocený a zabezpečený přístupovým systémem s kódem nebo kartou, což majitelům zajišťuje naprosté soukromí a bezpečí.
VYBAVENÍ BYTU:
Vstupní hala
Prostorný obývací pokoj s kuchyní a jídelnou (38,22m2)
Tři ložnice
Dvě moderní koupelny
Šatní skříň Lodžie (20m2)
Vlastní parkovací stání na pozemku
Podlahové vytápění v obývacím pokoji a kuchyni pro maximální komfort
Klimatizace ve všech pokojích
Kvalitní parkety a keramika a PVC truhlářství nejvyšší kvality
Kupující neplatí neplatí daň z nabytí nemovitostí!
Plánované dokončení stavby je únor 2026.
Poloha nemovitosti
- Pláž: 90 m
- Moře: 90 m
