Byt v novostavbě Privlaka
Privlaka , Zadarska oblast
Ložnice
2
Koupelny
2
Plocha
88 m²
Popis nemovitosti
LUXUSNÍ DVOU BYT V PŘÍZEMÍ - PRIVLAKA, DRUHÁ ŘADA OD MOŘE
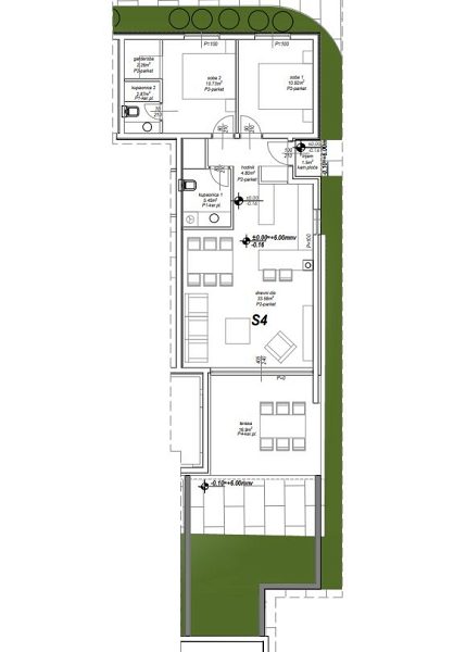
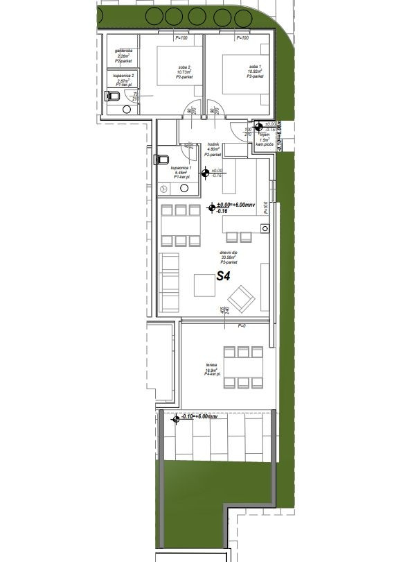
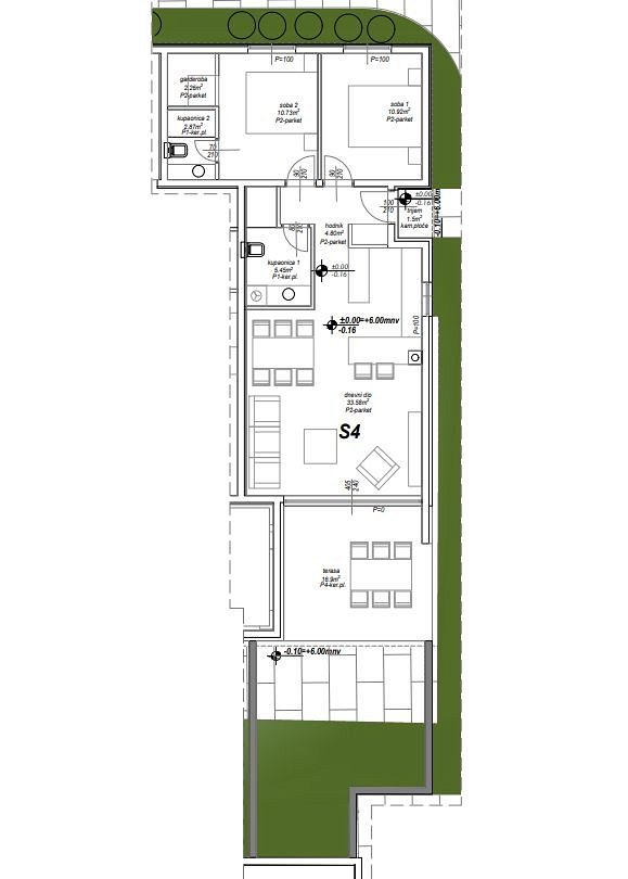
Prostorný byt 2+1 (S4) v přízemí novostavby v Privlace, v bezprostřední blízkosti Zadaru, je na prodej. Celková plocha bytu s příslušenstvím je 88,43 m². Byt se nachází v domě s 10 bytovými jednotkami, který se nachází ve druhé řadě od moře. Vstup do objektu je soukromý, oplocený a zabezpečený přístupovým systémem s kódem nebo kartou, což majitelům zajišťuje naprosté soukromí a bezpečí.
VYBAVENÍ BYTU:
Vstupní hala
Prostorný obývací pokoj s kuchyní a jídelnou
Dvě ložnice
Dvě moderní koupelny
Šatní skříň
Lodžie
Předzahrádka - ideální pro relaxaci (26,84m2)
Vlastní parkovací stání na pozemku
Podlahové vytápění v obývacím pokoji a kuchyni pro maximální komfort
Klimatizace ve všech pokojích
Kvalitní parkety a keramika PVC truhlářství nejvyšší kvality
Kupující neplatí daň z nemovitosti!
Plánované dokončení stavby je únor 2026
Poloha nemovitosti
- Pláž: 90 m
- Moře: 90 m
