ID: 1384
prodej
byt
3+kk, ve výstavbě
Byt v novostavbě Povljana (S1)
Povljana , ostrov Pag , Zadarska oblast
Cena: € 359 730
Ložnice
2
Koupelny
2
Plocha
80 m²
Popis nemovitosti
Na prodej moderní bytový dům na atraktivní lokaci, v bezprostřední blízkosti pláže a veškeré důležité občanské vybavenosti.
Budova se skládá z celkem 6 bytových jednotek. Ke každému bytu náleží vlastní garážové parkovací místo a sklep v suterénu domu.
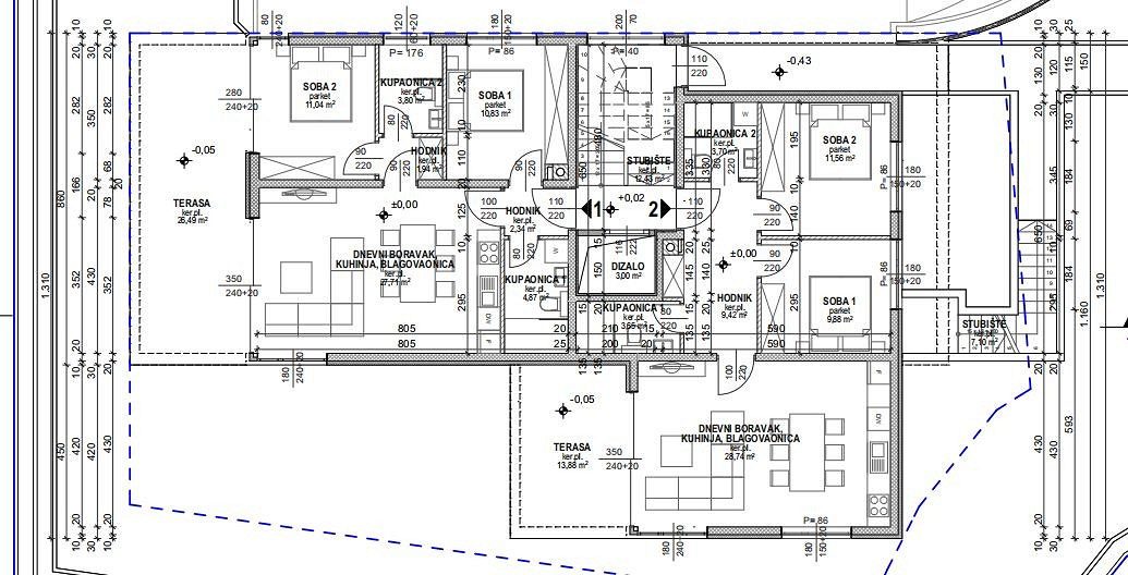
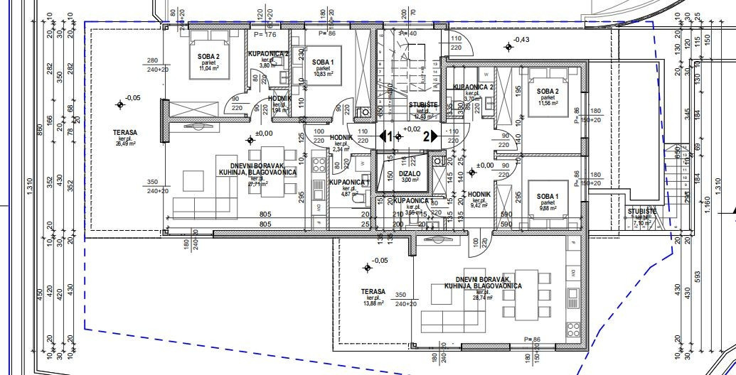
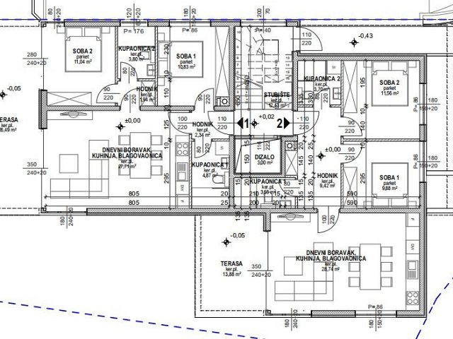
Byt S1
Byt se nachází v přízemí a zahrnuje:
-
2 ložnice,
-
prostorný obývací pokoj s kuchyní a jídelnou,
-
2 koupelny,
-
2 balkony,
-
střešní terasu s dalším prostorem pro odpočinek.
Celková plocha bytu činí 79,94 m².
Další výhody:
-
sklepní kóje v suterénu budovy,
-
vlastní garážové parkovací místo.
Byt S1 nabízí komfort, soukromí a nádherný výhled – ideální pro rekreaci, trvalé bydlení nebo jako investice do turistického pronájmu.
Půdorysy
Poloha nemovitosti
Nahrávám mapu...
Vzdálenosti
- Pláž: 60 m
- Moře: 60 m
Zpět nahoru
