ID: 1379
prodej
byt
3+kk, ve výstavbě
Byt v novostavbě Povljana (S6)
Povljana , ostrov Pag , Zadarska oblast
Cena: € 519 210
Ložnice
2
Koupelny
2
Plocha
115 m²
Popis nemovitosti
Na prodej nabízíme moderní bytový dům na atraktivní lokaci, v bezprostřední blízkosti pláže a veškeré důležité občanské vybavenosti. Budova se skládá z celkem 6 bytových jednotek. Ke každému bytu náleží vlastní garážové parkovací místo a sklep v suterénu domu.
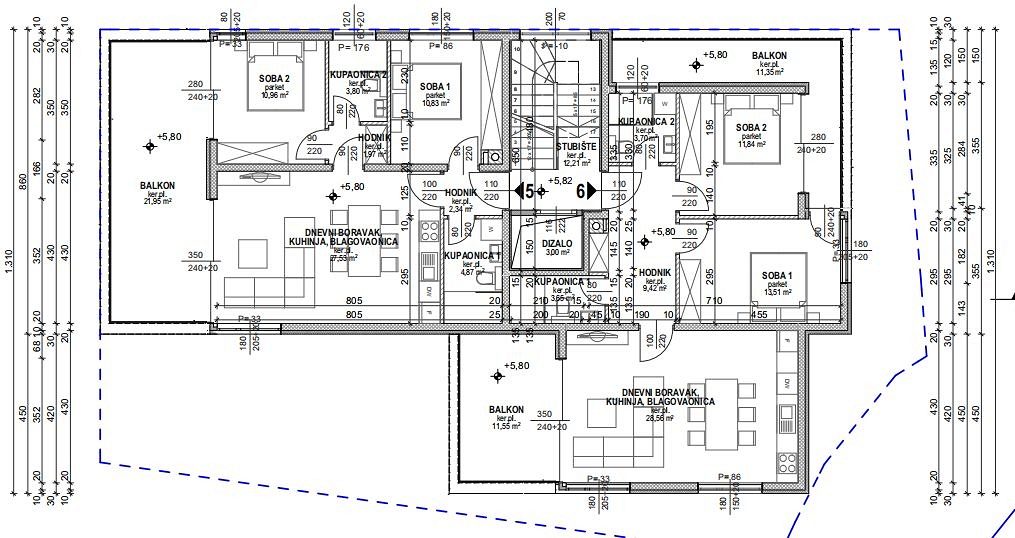
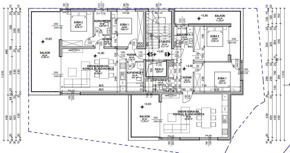
Byt S6 – 2. patro + střešní terasa
Byt se nachází ve druhém patře a zahrnuje:
-
2 ložnice,
-
prostorný obývací pokoj s kuchyní a jídelnou,
-
2 koupelny,
-
2 balkony,
-
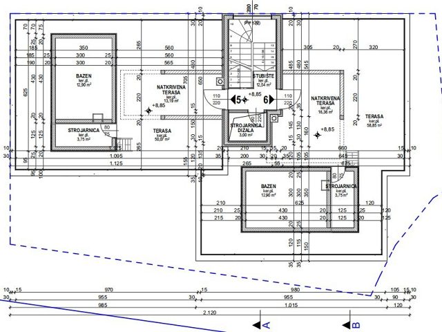
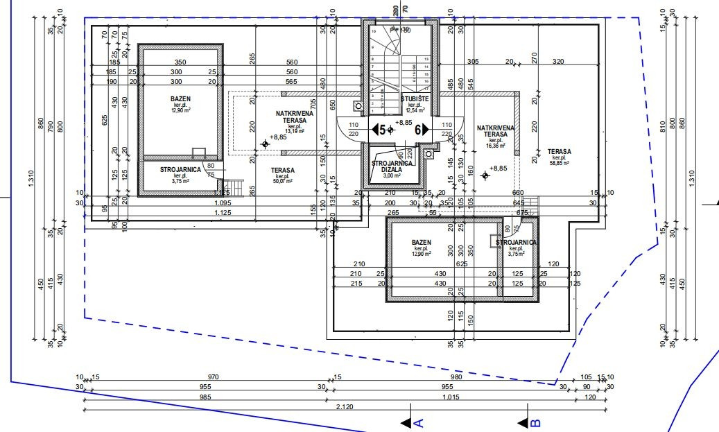
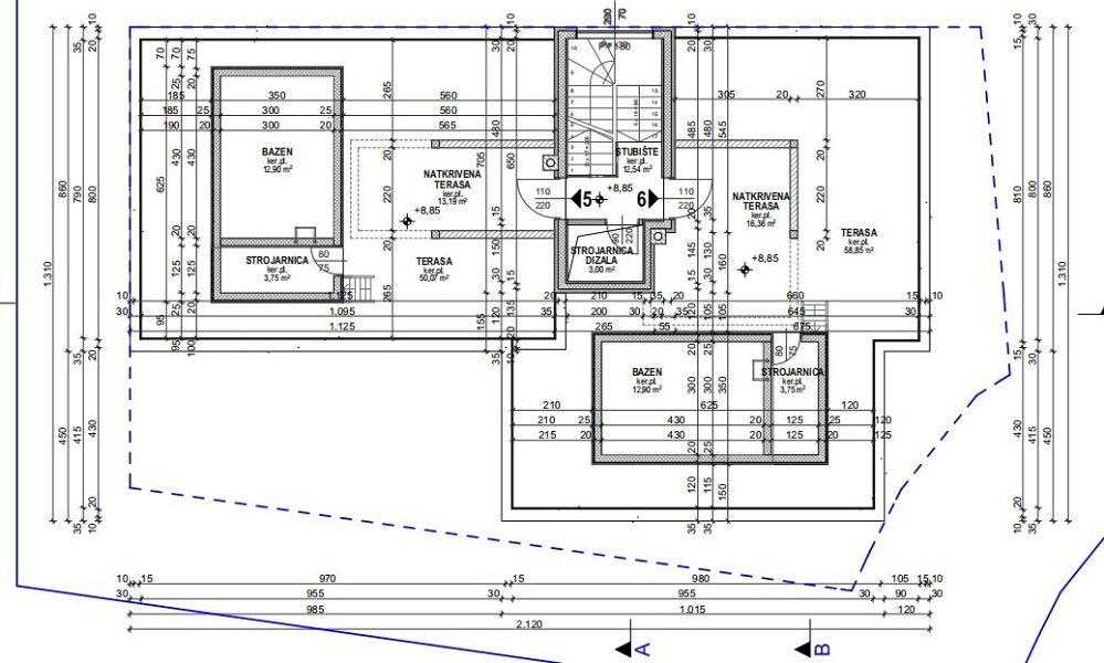
střešní terasu s dalším prostorem pro odpočinek.
Celková plocha bytu činí 115,38 m².
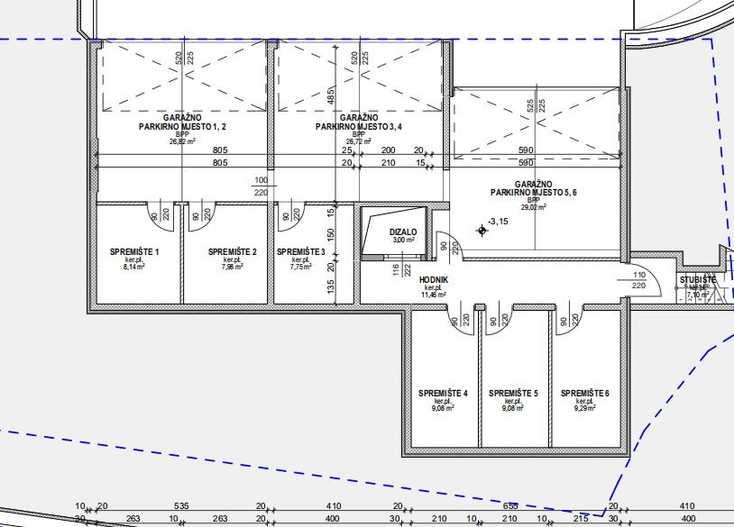
Další výhody:
-
sklepní kóje v suterénu budovy,
-
vlastní garážové parkovací místo.
Byt S6 nabízí komfort, soukromí a nádherný výhled – ideální k rekreaci, trvalému bydlení nebo jako investice do turistického pronájmu.
Půdorysy
Poloha nemovitosti
Nahrávám mapu...
Vzdálenosti
- Pláž: 60 m
- Centrum: 60 m
Zpět nahoru
