ID: 1396
prodej
byt
k nastěhování
Nové byty Stara Novalja, lokalita Brajdica (S1)
Stara Novalja , Ličko-senjska oblast
Cena: € 225 000
Ložnice
2
Koupelny
1
Plocha
76 m²
Popis nemovitosti
V nabídce je nově dokončený rezidenční projekt situovaný v klidné a atraktivní části Stare Novalje, pouhých cca 400 m od moře. Projekt se skládá ze tří moderních budov (A, B a C), každá se šesti bytovými jednotkami. Každý byt má zajištěné parkovací místo zahrnuté v ceně.
Popis budov a kvalita výstavby:
- Stěny z armovaného betonu pro maximální stabilitu a izolaci
- Hliníková posuvně-skleněná okna s tvrzeným tónovaným sklem pro ochranu a estetiku
- Skleněné zábradlí na schodištích a terasách – moderní vzhled a bezpečnost
- Klimatizace LG s Wi-Fi ve všech místnostech
- Schodiště z kamene – dlouhá životnost a sofistikovaný vzhled
- Vchodové dveře Inoterm, hliníkové a protipožární
- Fasáda s 10 cm EPS izolací – vynikající tepelná účinnost
- Kvalitní keramika ve všech prostorách
- Elektrické podlahové topení v koupelnách
- Krb/gril na terasách každého bytu
- Příprava pro nabíjení elektrických vozidel
- Portafony, satelitní a anténní přípojky
- Schodiště vybaveno protipožární ochranou a izolací z kamenné vlny
- Ohřev vody elektrickým bojlerem
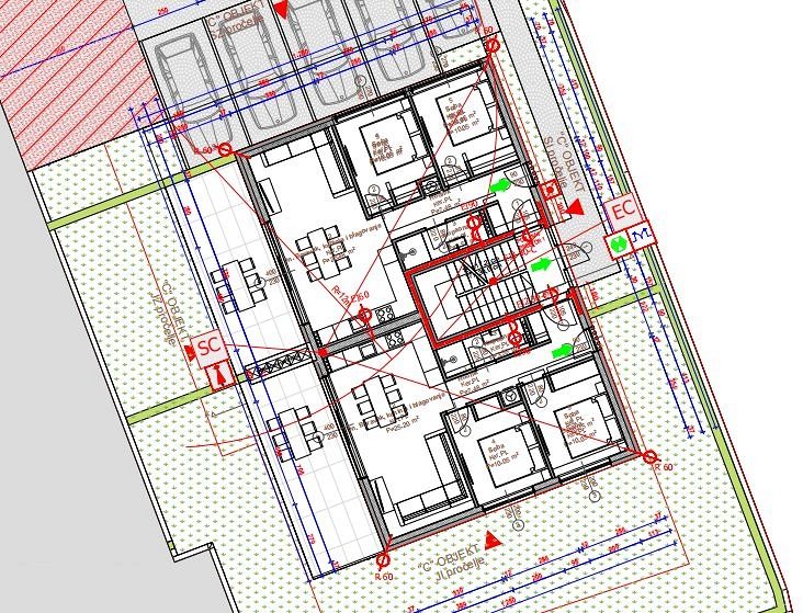
Dostupný byt: Budova C - Byt S1
- Plocha: 76 m² (netto)
- Podlaží: přízemí
- Orientace: jih
- Dispozice: 2 ložnice, koupelna, chodba, kuchyň, obývací pokoj s jídelnou, zastřešená terasa, zahrada
- Parkovací místo zahrnuto v ceně
- Všechny budovy mají téměř identické půdorysy a rozměry
Půdorysy
Poloha nemovitosti
Nahrávám mapu...
Vzdálenosti
- Pláž: 400 m
- Moře: 400 m
Vyžádejte si prohlídku
Rychlý popis
Bezplatná vstupní konzultace
Nejde o prodejní schůzku. Jde o hovor ke sladění očekávání — lokalita, typ nemovitosti, rozpočet, průběh koupě. Bez závazků, bez tlaku. Pomůžeme vám zorientovat se a odpovíme na všechny vaše otázky.
Pojďme si promluvit
Najděme vaši nemovitost
Najděme vaši nemovitost
u moře společně
Zavolejte nebo napište – odpovíme do 24 hodin. K dispozici 7 dní v týdnu.
