Byt v novostavbě Zaton
Zaton , Zadarska oblast
Ložnice
2
Koupelny
1
Plocha
92 m²
Popis nemovitosti
BYT 2 V 1. PATRĚ - BUDOVA B
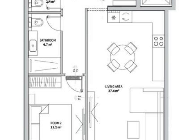
Rozměry a rozložení místností najdete v přiložených výkresech.
Exkluzivní bytový dům s apartmány se nachází v první řadě k moři v zátoce Zaton 2, v blízkosti promenády a různých pláží (3-5 minut chůze). Nedaleko se nachází Zaton Family Resort s bazény a rodinnými aktivitami. Historické centrum Zadaru je vzdálené 20 minut jízdy autem a nedaleko se nachází i letiště Zadar.
Charakteristika budovy:
Obytný dům s nekrytými parkovacími místy, přízemí, 2 patra a střešní terasa
Fasáda v systému "ETICS"
Hliníkové okna Schuco se sklem s regulací slunečního záření
Výtah OTIS s přímým přístupem z přízemí na střešní terasu
Dvě prostorná parkovací místa na byt s nabíječkou pro elektromobily
Výška stropu v bytech 268 cm
Hliníkové okenice na lodžiích pro ochranu před sluncem
Byty v přízemí mají velkou zahradu, venkovní sprchu, letní kuchyň a bazén
Byty ve druhém patře mají střešní terasu s možnými přístavbami (bazén, sprcha, letní kuchyň, bioklimatická pergola)
Příprava na vířivku na lodžiích v prvním patře
Moskytiéry na všech oknech a balkonových stěnách, elektrické žaluzie v ložnicích
Bezpečnostní a protipožární vstupní dveře s kódovým vstupem
Luxusní vysoké interiérové dveře bez zárubní
Dodatečná zvuková izolace mezi byty a Thermo-tech zvuková a tepelná izolace na každé podlahové desce
Interiérový design:
240x120 cm keramické obklady na všech površích
Podlahové vytápění a tepelná čerpadla Vaillant
Klimatizační systémy Mitsubishi v každé ložnici a obývacím pokoji
Systémy vytápění a chlazení připojené k Wi-Fi
Změkčovač vody v každém bytě
Sanitární keramika Hansgrohe
Umyvadla a toalety Villeroy&Boch
Sprchové kouty v koupelnách
Každý byt nabízí výjimečný výhled na moře a jedinečný západ slunce.
