Apartmán v Mandre na ostrově Pag v první řadě u moře
Mandre , ostrov Pag , Zadarska oblast
Ložnice
3
Plocha
86 m²
Popis nemovitosti
Představujeme vám exkluzivní příležitost - moderní a luxusní apartmán, který se nachází v první řadě u moře, v kouzelné středomořské osadě Mandre na ostrově Pag. Tato elegantní nemovitost nabízí maximální pohodlí a bezkonkurenční výhled na křišťálově čisté Jaderské moře.
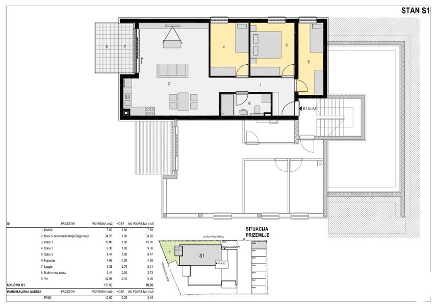
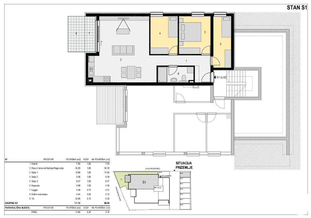
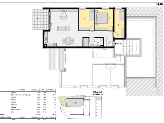
Byt se skládá z:
vstupní chodba,
tři ložnice (10,80 m², 9,36 m² a 8,47 m²),
moderně zařízené koupelny (4,99 m²),
prostorný obývací pokoj s kuchyní a jídelnou (34,20 m²),
Kryté terasy (5,44 m²) ideální pro relaxaci s výhledem na moře.
Celková hrubá plocha bytu je 137 m².
K bytu náleží vlastní zahrada o rozloze 52,95 m² - ideální místo pro soukromé venkovní posezení.
Byt bude vybaven moderními multisplitovými klimatizačními jednotkami a podlahovým vytápěním pro maximální komfort po celý rok. Energeticky úsporná odvětrávaná fasáda a plánovaný energetický certifikát A+ zajišťují nízké náklady na energie a vysokou úroveň udržitelnosti.
Byt je navržen s důrazem na bezpečnost a moderní životní styl – součástí je videovrátný, systém video dohledu a kvalitní keramické obklady, které zajišťují odolnost a snadnou údržbu prostoru
Poloha nemovitosti
Vyžádejte si prohlídku
Rychlý popis
Bezplatná vstupní konzultace
Nejde o prodejní schůzku. Jde o hovor ke sladění očekávání — lokalita, typ nemovitosti, rozpočet, průběh koupě. Bez závazků, bez tlaku. Pomůžeme vám zorientovat se a odpovíme na všechny vaše otázky.
Najděme vaši nemovitost
u moře společně
Zavolejte nebo napište – odpovíme do 24 hodin. K dispozici 7 dní v týdnu.
